ingenieurbüro bäuerle INGENIEURBÜRO BÄUERLE & PARTNER spacer Stellenangebote deutsch französisch

 

 
 
 
 
 
 
 
 

 

spacer
1 1 1 presse

 

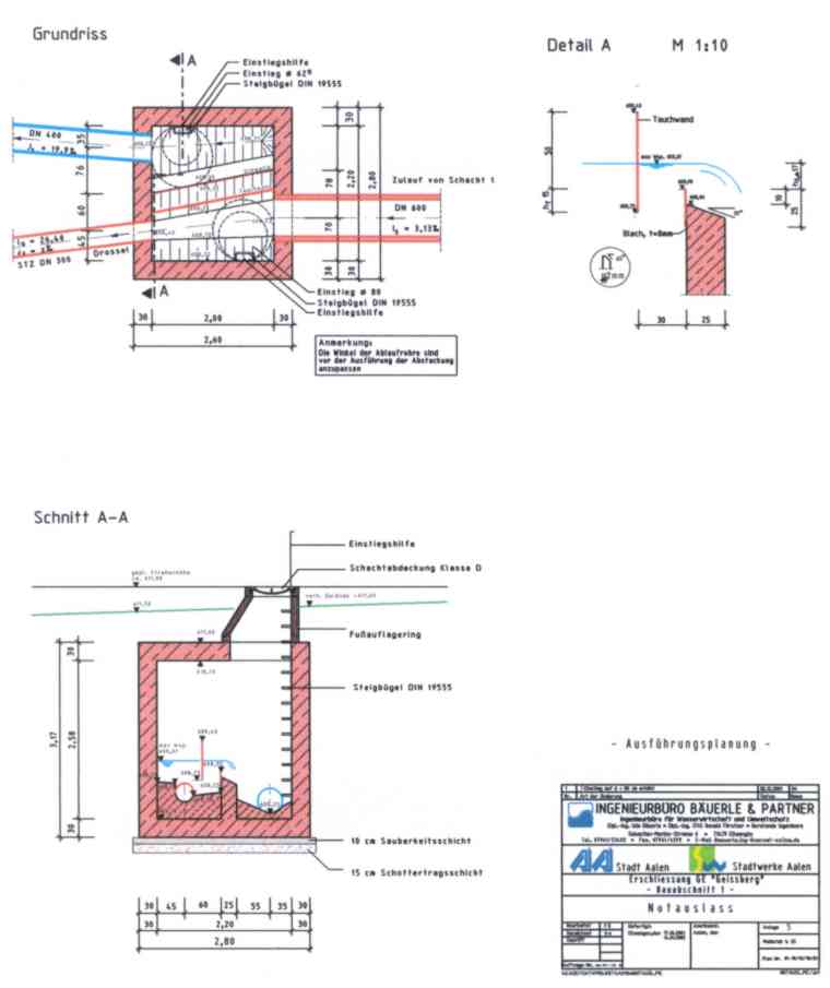
Erschließung Gewerbegebiet "Geissberg", Waldhausen

1

1
 
1
 
1 
» zum Vergrößern auf die Vorschaubilder klicken


Auftraggeber Stadt Aalen
 
Ausführungszeitraum 2001-2002
 
Projektbeschreibung Für das Gewerbegebiet Geissberg war für das Gesamtgebiet (ca. 7 ha) eine Entwässerungskonzeption im modifizierten Mischsystem zu planen sowie die Verkehrsanlagen. Hierbei war die Lage in der Wasserschutzzone III zu beachten.
 
Planungsdaten:
 
Mischwasserkanäle

470 m

Muldensystem für Dachflächenwasser 900 m
Regenwasserkanäle 260 m
Regenüberlaufbauwerk
Regenüberlaufbecken mit Pumpwerk 
und 260 m Druckleitung
Versickerungsbecken 700 m³
Verkehrsflächen 5 000 m²

Der 1. Bauabschnitt mit ca. 50 % des Gesamtgebietes wurde 2002 realisiert.

« zurück

2010 Copyright - INGENIEURBÜRO BÄUERLE & PARTNER

home